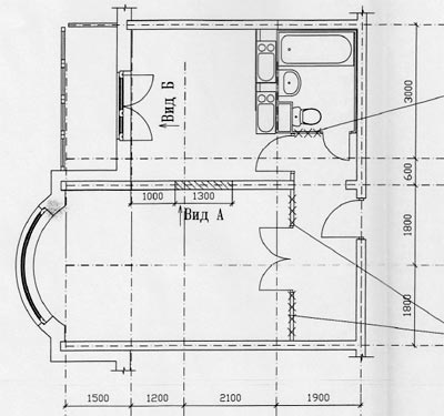
перепланировка однокомнатной квартиры