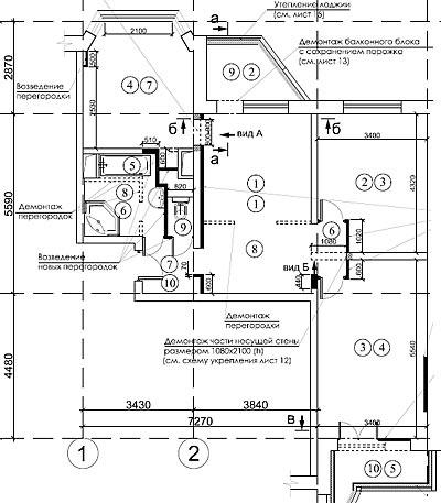
перепланировка трехкомнатной квартиры