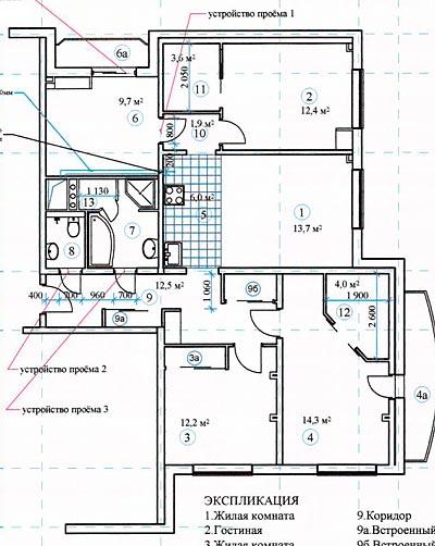
перепланировка копэ-парус