Усиление проёма уголком
Стоимость изготовления стандартных проемов 2,15х0,95 с усилением из уголка по периметру проема по распространенным проектам разных авторов домов включая металл и его доставку без вывоза мусора в пределах МКАД
Внимание! С постоянным изменением цен на металлопрокат от поставщиков, стоимость усиления может меняться.
| Автор проекта | Толщина бетонной стены в см. |
Спецификация уголка | Стоимость за один проем в рублях |
|
МНИИТЭП |
14 18 |
90х56 100х63 110х70 |
70000 - 85000 80000 - 95000 |
| МОСПРОЕКТ и прочие ПРОЕКТНЫЕ ОРГАНИЗАЦИИ |
14 18 20 22 |
63 или 75 | от 65000 |
| МОЗАЙКА | 18-20 | 100х63 140х90 |
85000 - 95000 90000 - 120000 |
| МОСЖИЛНИИПРОЕКТ | 14-30 | 100х100 125х125 140х140 160х160 |
75000 - 160000 |
| ГБУ "ЭКСПЕРТНЫЙ ЦЕНТР" | 14-30 | 100х63 100х100 125х125 |
75000 - 130000 |
От двух проемов на одном объекте - скидка, цена договорная
Если вы собираетесь делать проем без разрешения или вам не нужны документы от нас, мы вам вырежем проем и поставим усиление из уголка дешевле на 5-10%.
Звоните 8 (926) 152-42-71
Для расчета стоимости работ по резке проема с усилением присылайте проект на электронную почту slom-495@mail.ru указав адрес объекта или
Дешёвые проёмы с усилением и исправление брака
Фотографии усилений проемов АПБ Мозайка
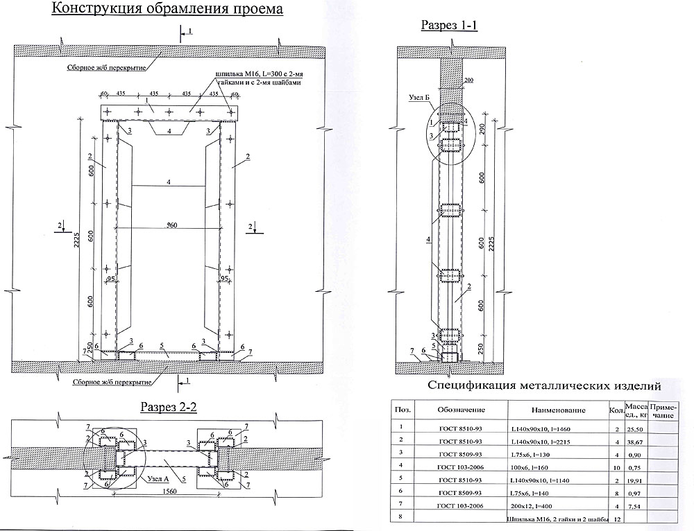
уголок 140х90 (серия дома И-155.......)

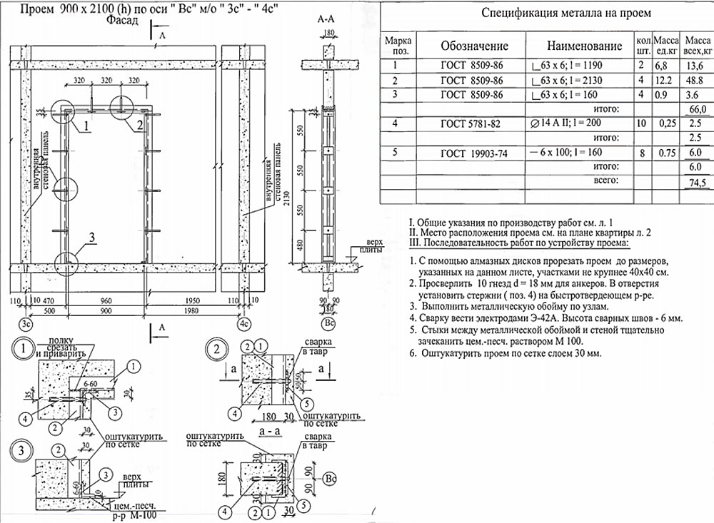
Типовое усиление стандартного проема в 14-18 см стене панельного дома разнополочный уголок 110 х 70 (90х56, 100х63) проект МНИИТЭП.

Усиление проема уголком по периметру и уголком под плиту перекрытия. Стоит на 15000 рублей дороже, чем усиление проема только по периметру.

Готовое усиление из уголка 140х90 типовой проект СУ-155 (Мозайка)

Монтаж усиления из 75 уголка

Усиление проема из 75 уголка согласно проекта

Усиление проема 100 уголком на болтах согласно проекта

Готовое усиление 14 см бетонной стены из 100 уголка в накладку согласно проекта.

Усиление проема уголком 100х100 согласно проекта

Проемы под ворота - усиление проемов 125 уголком
