Простая перепланировка
квартир не нуждается в согласовании
Подробнее
Перепланировка - это перенос и разборка ненесущих
перегородок; перенос и устройство дверных и лестничных
проемов в стенах и перекрытиях; разукрупнение многокомнатных
квартир; устройство дополнительных кухонь и санузлов;
расширение жилой площади за счет вспомогательных помещений;
ликвидация темных кухонь и входов в кухни через квартиры или
жилые помещения; устройство или переоборудование
существующих тамбуров. Одним словом, перепланировка
- это любое изменение от первоначального плана БТИ.
Самое мягкое наказание за то что была произведена самовольная перепланировка квартиры - письменное предупреждение нарушителя и наложение на него штрафа. Если же соседи пострадали или был нанесен вред коммуникациям и зданию в целом, к нарушителю могут применить ст. 293 Гражданского кодекса РФ. На основании этой статьи, если собственник жилого помещения продолжает нарушать права и интересы соседей либо без уважительной причины не производит необходимый ремонт, суд правомочен принять решение о продаже помещения с публичных торгов, чтобы компенсировать ущерб и оплатить судебные издержки.
Узаконенная перепланировка - гарантия соблюдения строительных норм и правил, отсутствия сбоев в работе отдельных инженерных систем и конструкций, отсутствия ухудшения звукоизоляции и технического состояния дома. Узаконенная перепланировка избавляет от неприятных визитов официальных лиц, недовольства соседей и штрафных санкций: опечатывания квартиры, возвращения ее в первоначальное состояние за счет жильца. В случае каких-либо происшествий ответственность понесут архитектор, разработавший проект перепланировки, и районный архитектор, поставивший подпись на согласование.
Если при перепланировки квартиры вы не собираетесь делать следующие вещи, то мы вам сможем помочь:
- трогать системы вентиляции
- замуровывать в стену стояки газовых труб
- переносить кухню в жилую комнату
- размещать санузел над жилыми помещениями соседей или обустраивать ванную комнату в кухне в случае присоединения двух квартир
Из архива сюжет программы "Доброе утро" на "Первом канале" с участием нашего юриста Гусевой Л.Г.
Полезные советы по перепланировке квартиры
Основные этапы сопровождение перепланировки квартир
Цена на согласование перепланировки зависит от категории сложности объекта.
Недопустимые виды работ при перепланировке квартиры
Проект на перепланировку квартиры должен быть выполнен в установленном объеме специализированной проектной организацией имеющей допуск СРО, которая несет полную ответственность за принятое конструкторское и санитарно-техническое решение и выполненные расчеты.
Перепланировки не требующие предварительной разработки проекта вы можете посмотреть в каталоге типовых проектных решений перепланировки квартир в жилых домах массовых серий каталог.pdf (каталог МОСЖИЛИНСПЕКЦИИ www.mgi.mos.ru)
Внимание! Любые проемы в несущих стенах, независимо от того, есть ли они в каталоге или нет, должны выполняться сертифицированными фирмами имеющими допуск СРО.
Для узаконивания проемов в несущих стенах МОСЖИЛИНСПЕКЦИЯ требует договор проведения работ, копию действующего допуска СРО, акт скрытых работ на усиление проема, заполненный журнал проведения работ (при наличии), акт выданный Мосжилинспекцией заполненный организацией проводившей работы.
Все эти документы должны быть выданы сертифицированной организацией проводившей работы, имеющей допуск СРО.
Вышеперечисленные документы нами выдаются при наличии разрешения от Мосжилинспекции (в Москве), разрешения от администрации городского округа (в Подмосковье) или при наличии проекта на перепланировку от автора дома.
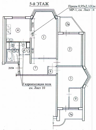
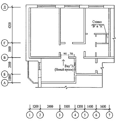
Выборочные проекты перепланировки
квартир с
Самое мягкое наказание за то что была произведена самовольная перепланировка квартиры - письменное предупреждение нарушителя и наложение на него штрафа. Если же соседи пострадали или был нанесен вред коммуникациям и зданию в целом, к нарушителю могут применить ст. 293 Гражданского кодекса РФ. На основании этой статьи, если собственник жилого помещения продолжает нарушать права и интересы соседей либо без уважительной причины не производит необходимый ремонт, суд правомочен принять решение о продаже помещения с публичных торгов, чтобы компенсировать ущерб и оплатить судебные издержки.
Узаконенная перепланировка - гарантия соблюдения строительных норм и правил, отсутствия сбоев в работе отдельных инженерных систем и конструкций, отсутствия ухудшения звукоизоляции и технического состояния дома. Узаконенная перепланировка избавляет от неприятных визитов официальных лиц, недовольства соседей и штрафных санкций: опечатывания квартиры, возвращения ее в первоначальное состояние за счет жильца. В случае каких-либо происшествий ответственность понесут архитектор, разработавший проект перепланировки, и районный архитектор, поставивший подпись на согласование.

Если при перепланировки квартиры вы не собираетесь делать следующие вещи, то мы вам сможем помочь:
- трогать системы вентиляции
- замуровывать в стену стояки газовых труб
- переносить кухню в жилую комнату
- размещать санузел над жилыми помещениями соседей или обустраивать ванную комнату в кухне в случае присоединения двух квартир
Из архива сюжет программы "Доброе утро" на "Первом канале" с участием нашего юриста Гусевой Л.Г.
Полезные советы по перепланировке квартиры
Основные этапы сопровождение перепланировки квартир
Цена на согласование перепланировки зависит от категории сложности объекта.
Недопустимые виды работ при перепланировке квартиры
Проекты перепланировок квартир
Проект на перепланировку квартиры должен быть выполнен в установленном объеме специализированной проектной организацией имеющей допуск СРО, которая несет полную ответственность за принятое конструкторское и санитарно-техническое решение и выполненные расчеты.
Перепланировки не требующие предварительной разработки проекта вы можете посмотреть в каталоге типовых проектных решений перепланировки квартир в жилых домах массовых серий каталог.pdf (каталог МОСЖИЛИНСПЕКЦИИ www.mgi.mos.ru)
Внимание! Любые проемы в несущих стенах, независимо от того, есть ли они в каталоге или нет, должны выполняться сертифицированными фирмами имеющими допуск СРО.
Для узаконивания проемов в несущих стенах МОСЖИЛИНСПЕКЦИЯ требует договор проведения работ, копию действующего допуска СРО, акт скрытых работ на усиление проема, заполненный журнал проведения работ (при наличии), акт выданный Мосжилинспекцией заполненный организацией проводившей работы.
Все эти документы должны быть выданы сертифицированной организацией проводившей работы, имеющей допуск СРО.
Вышеперечисленные документы нами выдаются при наличии разрешения от Мосжилинспекции (в Москве), разрешения от администрации городского округа (в Подмосковье) или при наличии проекта на перепланировку от автора дома.
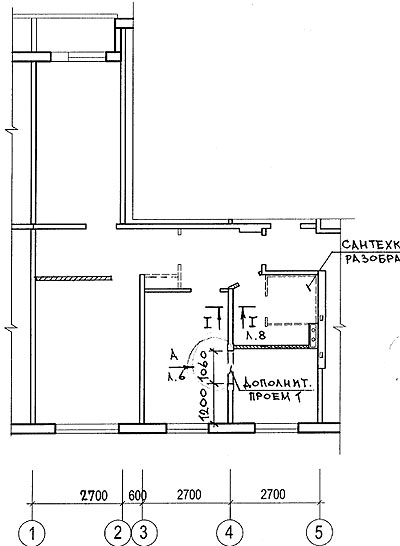
Выборочные проекты перепланировки
квартир с
проемами в несущих стенах
Отдел перепланировки
(согласование перепланировок, разработка
проектов перепланировки)
тел: 8 (925) 748-72-24
Если вам не отвечают, перезвоните, пожалуйста, позже или
после 16:00, возможно сотрудники на переговорах или на
приёме у чиновника, спасибо за понимание.
